Vendesi trilocale: Grotte Celoni
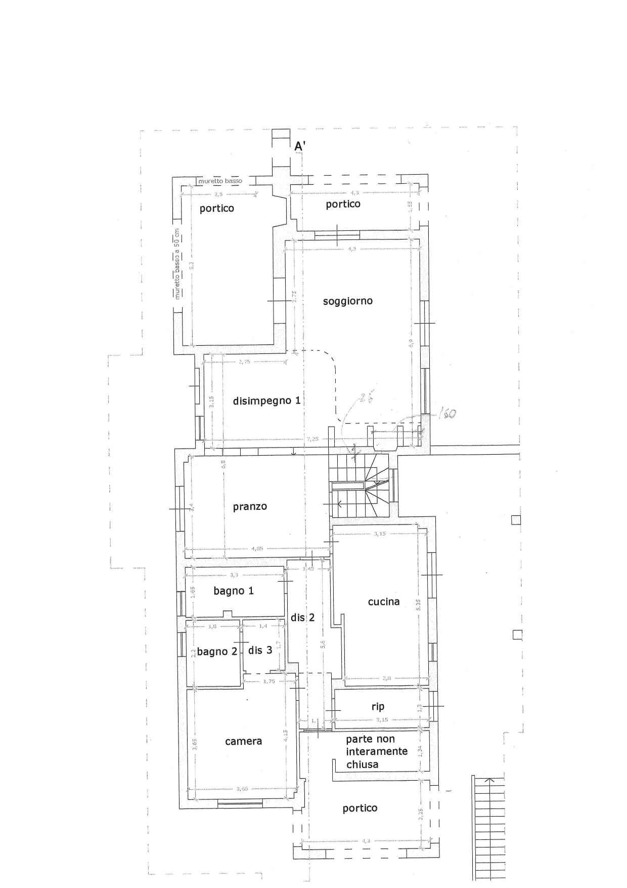
Vendesi trilocale: Grotte Celoni Proponiamo in vendita un trilocale di…
In Vendita
Owning a home is a keystone of wealth… both financial affluence and emotional security.